Gemeentehuis Geldrop-Mierlo
Het gemeentehuis van Geldrop-Mierlo is duurzaam gerenoveerd en uitgebreid met een multifunctioneel vergadercentrum. De kantoorvleugels krijgen een interieur update. Aanleiding voor de verbouwing is een toename van de ruimtebehoefte door de decentralisatie van overheidstaken en de afwezigheid van een raadzaal en goede vergaderfaciliteiten voor ambtelijk gebruik. Na de verbouwing biedt het gemeentehuis ruimte aan 160 hernieuwde werkplekken in de kantoorvleugels. Het nieuwe vergadercentrum is 750m2 groot en telt nog eens circa 50 flexwerk- en vergaderplekken met de mogelijkheid raadsvergaderingen te organiseren met 120 bezoekers. Na de renovatie en uitbreiding is het gebouw gasloos all electric met energielabel klasse A+++
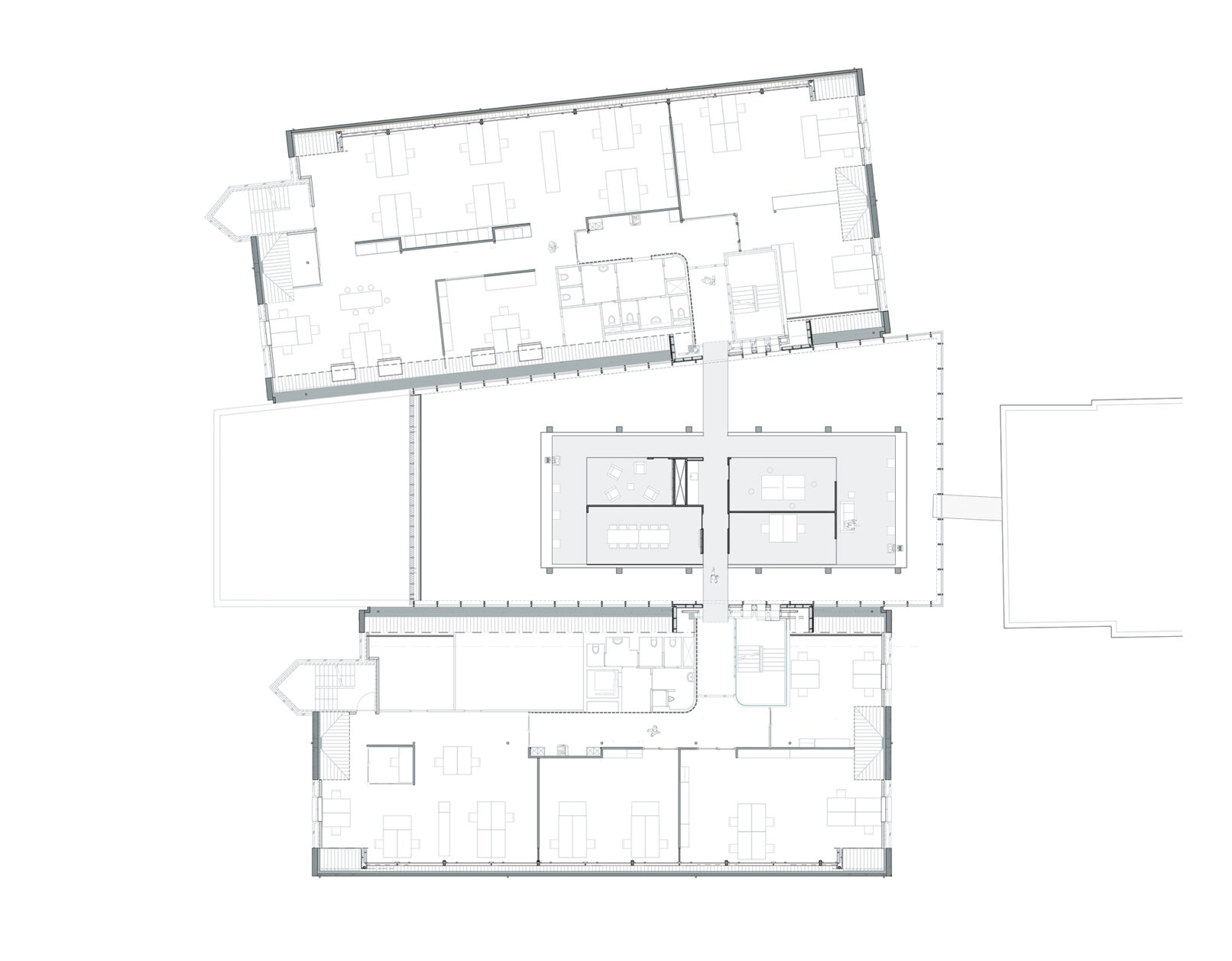
bovenaanzicht
Uitstraling
Onderdeel van de vraagstelling was een verbetering van de architectonische zeggingskracht van het complex. De huidige situatie mist de uitstraling van een openbaar gebouw en communiceert niet duidelijke dat dit het gemeentehuis is. Het gemeentehuis bestaat nu uit twee met elkaar verbonden gebouw; een rijksmonumentale villa uit 1868 en een gebouw uit 1985 (architect De Bever) met twee kantoorvleugels en een middengebied dat met een aangekapt tussenlid tegen de villa staat.
Publieke- en bestuurszone centraal
Reset architecture heeft de villa visueel losgekoppeld van het jaren tachtig gebouw om de monumentale status van de villa te benadrukken en een duidelijk entree situatie te creëren vanuit de omringende openbare ruimte. Vervolgens is een nieuw transparant volume ontworpen dat is ingeklemd tussen de twee kantoorvleugels boven de begane grond. Met deze herschikking ontstaat duidelijkheid in de samenstelling van het complex. De villa en het nieuwe middengebied vormen de publieke- en bestuurszone, centraal, tussen de twee ambtelijke vleugels. Om de publieke functie van de nieuwbouw te accentueren reageert deze op de eclectische villa. De gevels van de villa hebben een symmetrisch opzet met een verticale geleding die benadrukt wordt door een midden risaliet en hoekpilasters. De toevoeging van Reset architecture kun je lezen als een ver doorgevoerde abstractie hiervan, het continueert de witte kleur van de villa in een vliesgevel waarin de verticaliteit in het detail tot het uiterste wordt benadrukt. De uitbreiding manifesteert zich nadrukkelijk, het steekt voorbij de kantoorvleugels met een overstek en de transparantie van de gevels communiceert een uitnodigend openbare karakter en zet de besluitvorming van de raad in de etalage.
doorsnede
Plein
Het interieur van het multifunctionele vergadercentrum heeft een open en ruimtelijke karakter. Het vergadercentrum presenteert zich als één geheel met daarin vergaderkamers op twee verdiepingen. De samenhang van de ruimte wordt versterkt door een doorlopende ritmiek van stijlen in de vier gevels en alzijdige lichtinval. De raadzaal opstelling is multifunctioneel inzetbaar voor vergaderingen, lunch en flex werkplekken.
Proces
In een kort ontwerp proces van 7 maanden heeft Reset architecture het plan van schetsontwerp door ontwikkeld tot een technisch ontwerp ten behoeve van de aanbesteding. Ondanks de oplopende prijzen in de bouw is het gelukt om het project binnen budget aan te besteden, de totaal aanneemsom is 5,5 miljoen euro. De bouw is eind 2019 afgerond, Reset architecture is tijdens de bouw betrokken gebleven met het maken van werktekeningen en bouwbegeleiding.
1620-GGM-PR-1117 _ 1. 1e verdieping
1620-GGM-PR-1117 _ 1. 1e verdieping
1620-GGM-PR-1117 _ 1. 1e verdieping
1620-GGM-PR-1117 _ 1. 1e verdieping
plattegronden oud – nieuw (schuiven met de pijl)
preset

English













