Tivoli complex Utrecht
Het huidige Tivoli complex komt voort uit een lange doorgaande traditie van herbestemmingen vanaf de 13e eeuw. Van Zakbroedersklooster via Regulierenklooster tot Weeshuis en van verenigingsgebouw naar poppodium.
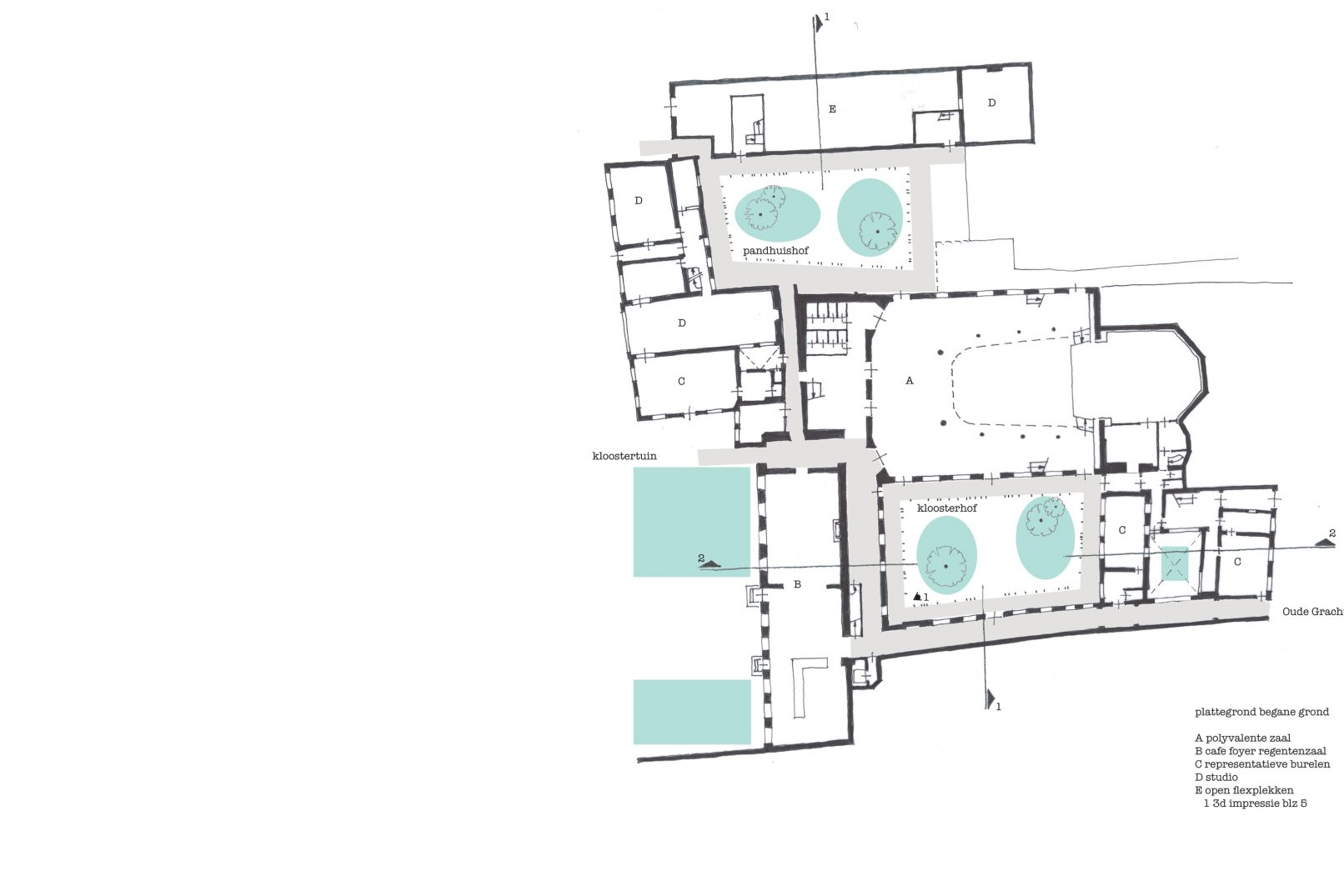
Kloosterhof
openen
De verschillende gebruikslagen maakt het gebouwencomplex van historisch belang. Dit wordt versterkt door de rijkheid aan bouwstijlen. Kenmerken uit de middeleeuwen, laatgotisch, Lodewijk XIV, neoclas- sicistisch en Art-deco zijn allen nog herkenbaar aanwezig. Op dit moment is het complex minder gediend bij een fundamentele transformatie en staat behoud voorop. We stellen daarom voor om het ensemble van gebouw slechts te openen zodat er ruimte ontstaat voor nieuw gebruik en de veelzijdige historie tevens beter zichtbaar wordt.
We zien een grote kwaliteit in de plaats die het complex inneemt in de fijnmazige structuur van de binnenstad van Utrecht. De intieme schaal en vriendelijke groene sfeer van de Kloostertuin is voor ons aanleiding om een open route tussen de Oude Gracht en de Springweg te realiseren. Het complex opent zich met een openbare route en wordt zo in een hernieuwde setting vanzelfsprekend opnieuw onderdeel van de stad.
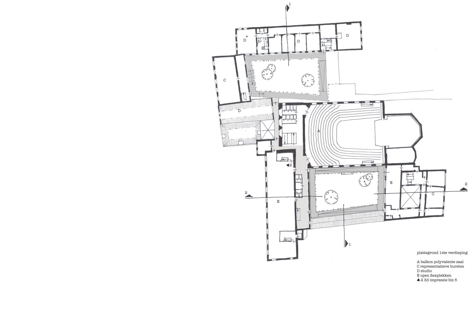
Ons doel om het complex te openen krijgt intern vorm door het terugbrengen van toegankelijke groene binnenhoven. Hierdoor ontstaat direct een open karakter met twee belangrijke resultanten. Ten eerste; het ervaren van open ruimten tussen de losse bouwdelen verschaft helderheid binnen het complex, je ervaart de verschillende panden als losse herkenbare gebouwen. Ten tweede; de hoven helpen bij de oriƫntatie door het complex, ze zijn onderdeel van de nieuwe openbare route op de begane grond en een semi-openbare route voor vaste gebruikers op de verdieping.
E. Flex working

English





